
概述
KYN28A-12铠装移开式交流金属封闭开关设备(以下简称开关柜设备)系3~10kV三相交流50/60Hz母线及单母线分段系统的成套配电装置。主要用于发电厂、中小型发电机送电、工矿企事业配电以及电业系统的二次变电所的受电、送电及大型高压电动机起动等,实行控制保护、监测之用。本开关设备满足DL/T404、IEC298、GB3906等标准要求具有防止带负荷推拉断路器手车,防止误入分合断路器、防止接地开关处在闭合位置时关合断路器、防止误入带电隔室、防止在带电时误合接地开关的联锁功能,可配用BVE、VS1真空断路器,又可配用ABB公司的VD4真空断路器和施耐德公司的EV12S真空断路器。实为一种性能优越的配电配电装置。
结构说明
开关设备按GB3906-91中的铠装式金属封闭开关设备而设计。开关柜由固定的柜体和中置式可抽出部件(既手车)两大部分组成,见图1。柜体分四个单独的隔室,外壳防护等级为IP4X,各小室间和断路器室门打开时防护等级为IP2X。具有架空进出线、电缆进出线及其它功能方案。经排列、组合后能成为各种方案形式的配电装置。本开关设备可以从正面进行安装调试和维护,因此它可以背靠背组成双重排列和靠墙安装,提高开关设备的安全性、灵活性,减少了占地面积。
使用环境条件
1.正常工作条件
a.周围环境空气温度:上限,+40℃下限,-10℃℃;
b.海拔: 1000m;
c.相对环境湿度:日平均相对湿度不大于95%,月平均相对湿度不大于90%:
d.地震烈度: 不超过8度:
e.周围空气应无腐蚀性或可燃气体、水蒸汽等明显污染:
f.无严重污秽及经常性的剧烈震动,严酷条件下严酷度设计满足l类要求。
2.特殊工作条件:*在超过GB3906规定的正常的环境条件下使用时由用户和制造厂协商。
主要技术参数

开关设备结构图

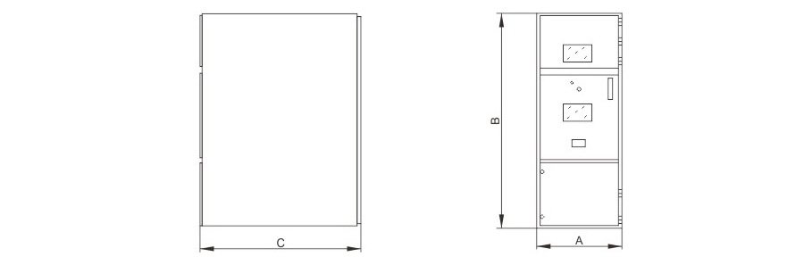
开关柜外形尺寸图

开关柜结构示意图

A 手车
手车骨架系采用薄钢板经CNC机床加工后经铆、焊而成的。根据用途,手车可分为断路器手车、电压互感器手车、隔离手车、计量手车等等,相同规格的手车能方便互换。手车在柜内有隔离位置、试验位置和工作位置,每一位置均设有定位装置。以保证手车处于以上位置时不能随便移动、而移动手车时必需要解除联锁。
B 母线室
母线从一个开关柜引至另一开关柜,通过分支母线和静触头盒固定。扁平的分支母线通过螺栓连接于静触头盒和主母线不需要任何其它的线夹或绝缘子联接。当用户和工程特殊需要时,母线排上的联接螺栓可用绝缘和端帽封装。在母线穿越开关柜隔板时,用母线套管固定。如果出现内部故障电弧,能限制事故蔓延到邻柜,并能保障母线的机械强度。
C 电缆室
电缆室内可安装电流互感器、接地开关、避雷器以及电缆、并在其底部配制开缝的可卸铝板,以确保现场的施工方便。
开关柜结构示意图

D 继电器仪表室
继电器仪表室用于安装各类继电器、仪表、信号指示、操作开关等元器件。此外可根据用户要求在仪表室顶部增加小母线室,可敷设十六路控制小母线。
锁扣结构
中门与柜体之间的联接采用锁扣结构,并配以提升机构,使中门开启更为方便,当中门处于关闭状态时,其与柜体的联接强度更好,增强了有效抗击内部燃弧故障的能力。
泄压装置
在手车室、母线室、电缆室的上方设有泄压装置,当断路器或主母线、电缆室内发生内部故障电弧时,伴随电弧的出现开关柜内部气压上升,达到一定的压力后,顶部装置的压力释放金属板将被自动打开,释放压力和排泄气体,以确保操作人员和开关柜安全。